Новострояща се луксозна сграда в
широкия център на град Пловдив
от реномиран строител.

Сградата се отличава с модерна визия, изгражда се с висок клас материали и съвременни строителни технологии, в непосредствена близост до Стадион Христо Ботев и ВСИ. Локацията е изключително комуникативна и осигурява бърз достъп до централната част на града, спирки на градски транспорт, магазини и учебни заведения, гарантиращи дългосрочна стойност на имота.

Окачена фасада с модерна и устойчива визия

Здрава и енергийно ефективна конструкция

Висококачествени материали и модерни технологии в строителството

Подземни и надземни гаражи и паркоместа за максимално удобство.

Дограма с високи топло- и шумоизолационни показатели

Свободни апартаменти в сградата

АПАРТАМЕНТ

3

БРОИ СТАИ - двустаен


КВАДРАТУРА - 81 кв.м


ЕTAЖ - 1


Жилището се състои от просторна всекидневна с кухненски бокс, отделно спалня, баня с тоалетна, перално отделение, коридор, склад и тераса.

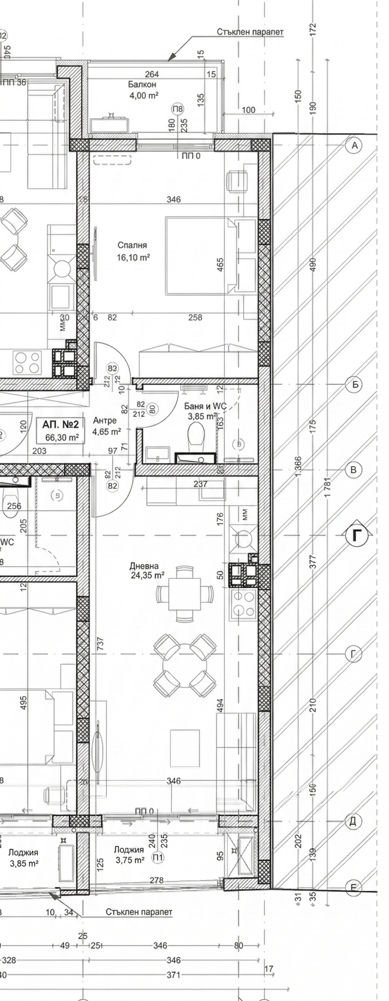
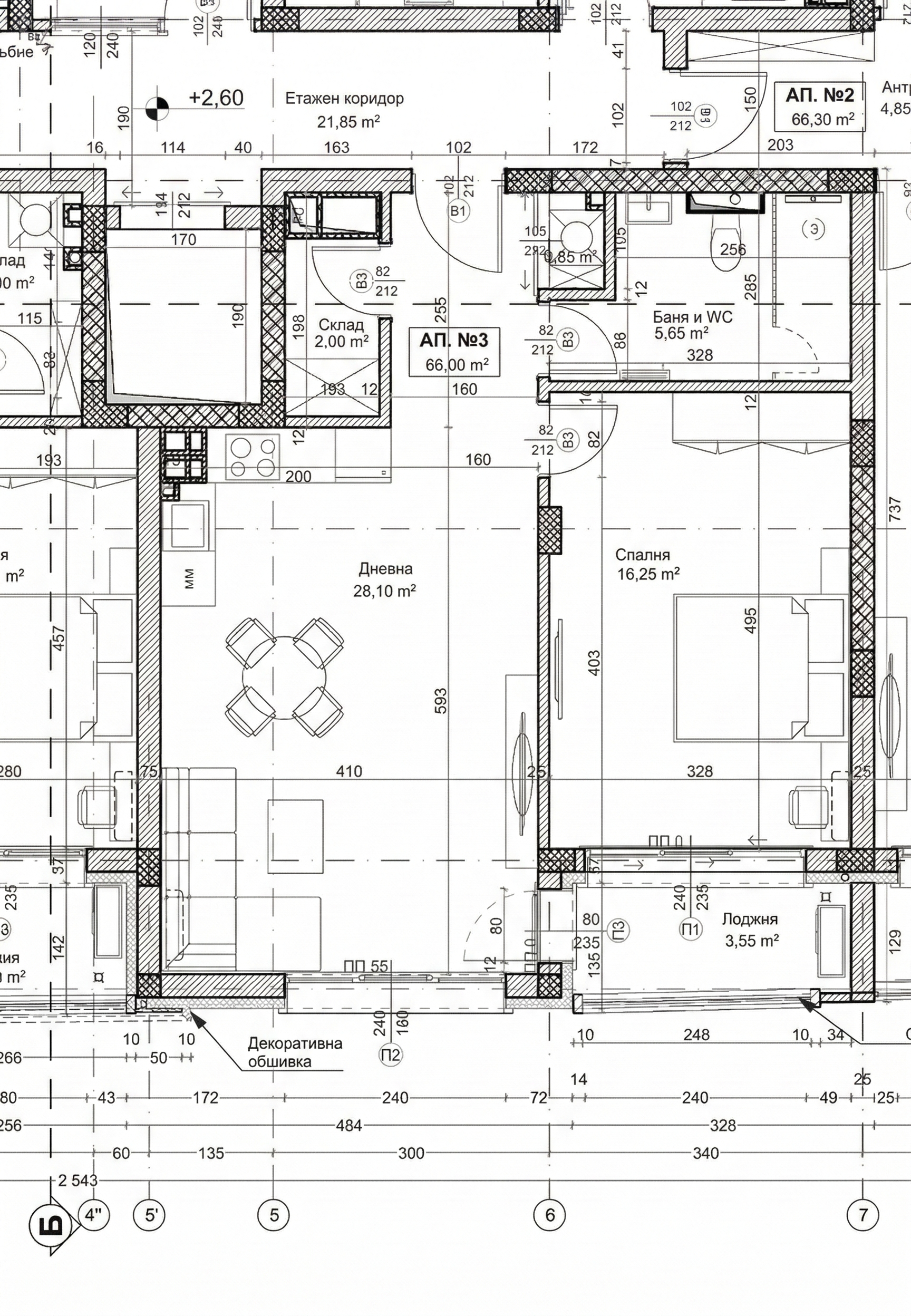
АПАРТАМЕНТ

2

БРОИ СТАИ - двустаен


КВАДРАТУРА - 80 кв.м


ЕTAЖ - 1


Жилището се състои от просторна всекидневна с кухненски бокс, отделно спалня, баня с тоалетна, перално отделение, входно антре и две тераси.

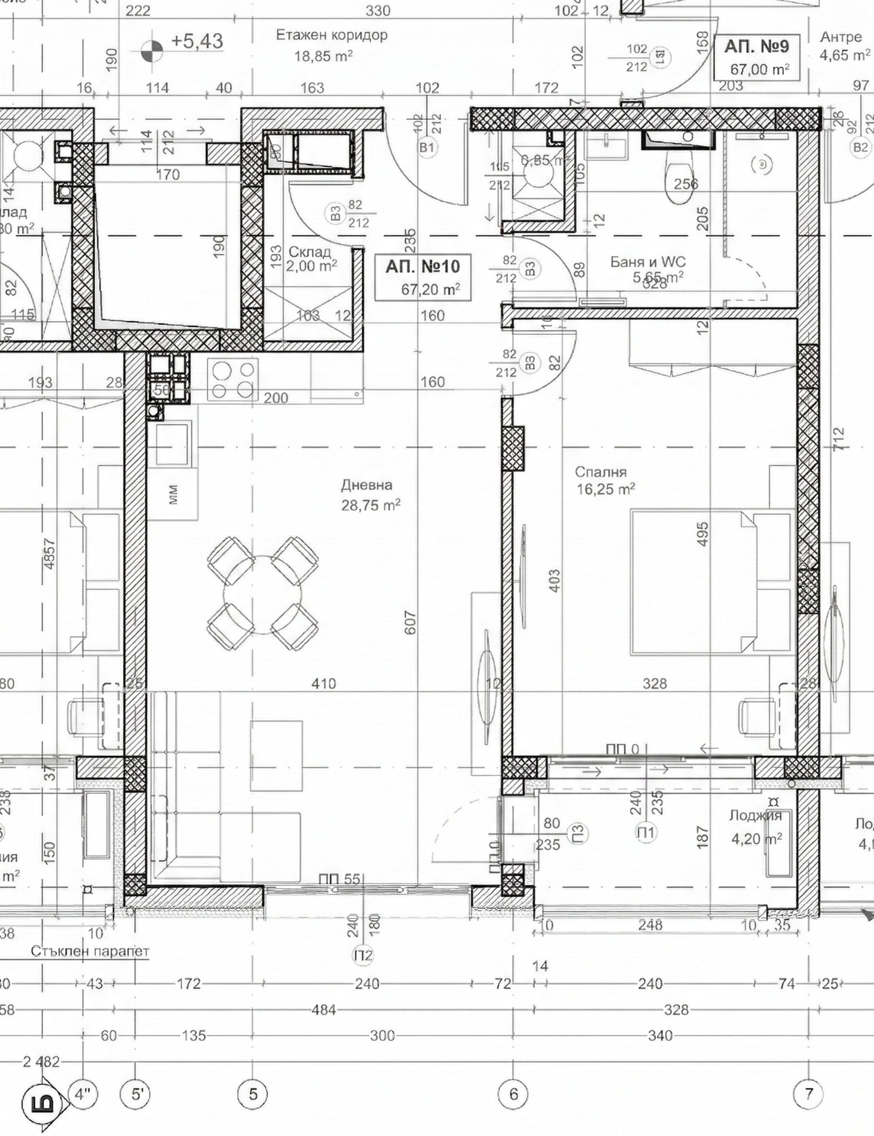
АПАРТАМЕНТ

10

БРОИ СТАИ - двустаен


КВАДРАТУРА - 82 кв.м


ЕTAЖ - 2


Жилището се състои от просторна всекидневна с кухненски бокс, отделно спалня, баня с тоалетна, перално отделение, коридор, склад и тераса.

АПАРТАМЕНТ

9

БРОИ СТАИ - двустаен


КВАДРАТУРА - 81 кв.м


ЕTAЖ - 2


Жилището се състои от просторна всекидневна с кухненски бокс, отделно спалня, баня с тоалетна, перално отделение, входно антре и две тераси.

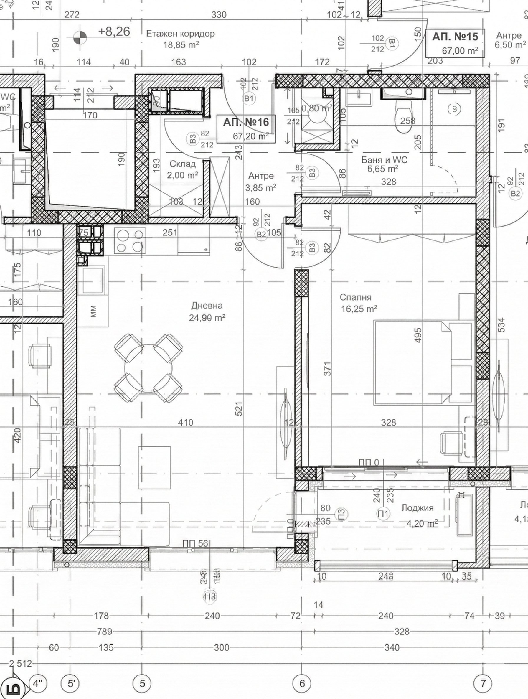
АПАРТАМЕНТ

16

БРОИ СТАИ - двустаен


КВАДРАТУРА - 82 кв.м


ЕTAЖ - 3


Жилището се състои от просторна всекидневна с кухненски бокс, отделно спалня, баня с тоалетна, перално отделение, коридор, склад и тераса.

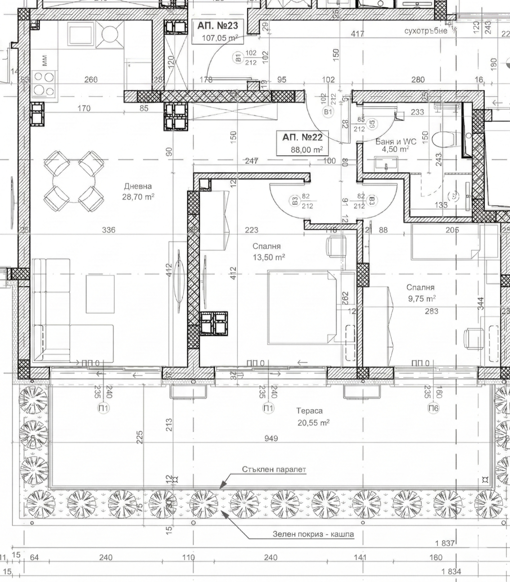
АПАРТАМЕНТ

22

БРОИ СТАИ - тристаен


КВАДРАТУРА - 100 кв.м


ЕTAЖ - 4


Жилището се състои от просторна всекидневна с кухненски бокс, отделно две спални, баня с тоалетна, входно антре и голяма тераса.

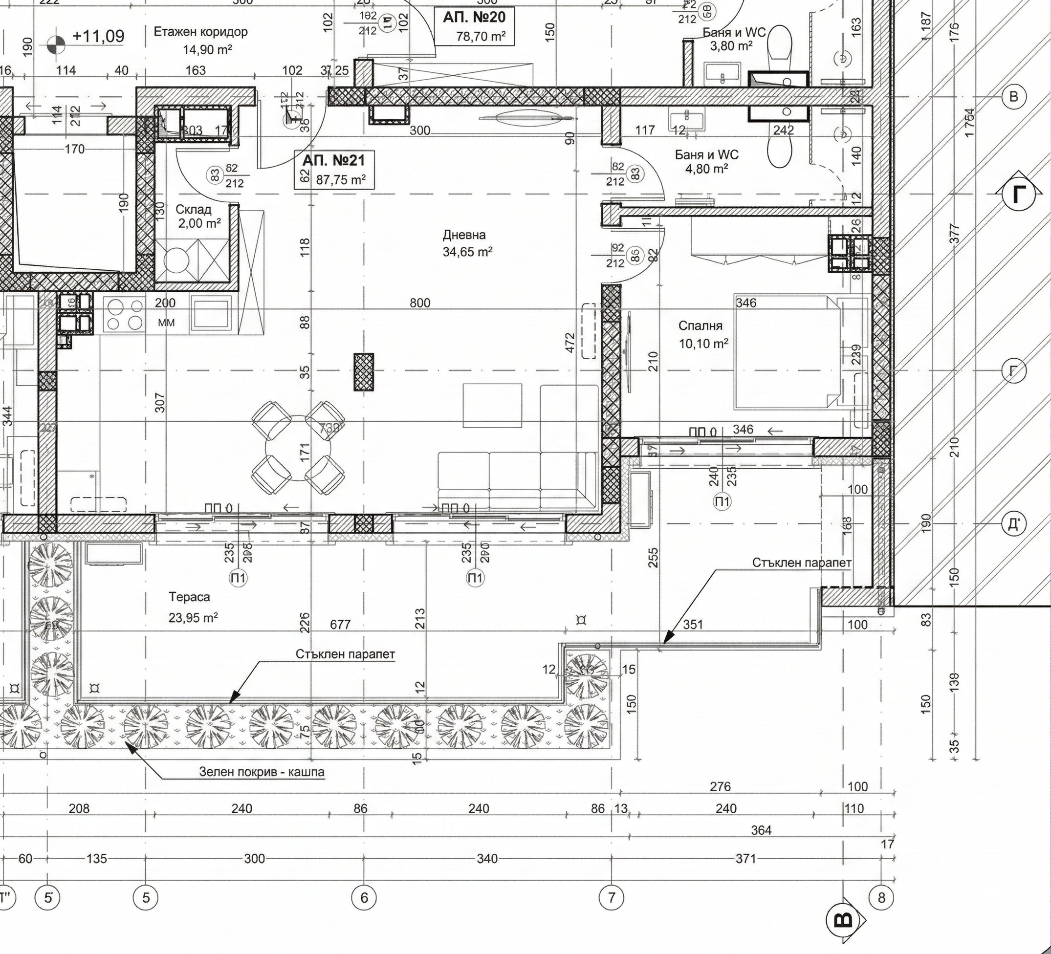
АПАРТАМЕНТ

21

БРОИ СТАИ - двустаен


КВАДРАТУРА - 102 кв.м


ЕTAЖ - 4


Жилището се състои от просторна всекидневна с кухненски бокс, отделно спалня, баня с тоалетна, склад, и много голяма тераса.

АПАРТАМЕНТ

25

БРОИ СТАИ - двустаен


КВАДРАТУРА - 85 кв.м


ЕTAЖ - 5


Жилището се състои от просторна всекидневна с кухненски бокс, отделно спалня, баня с тоалетна,склад, коридор и две тераси.

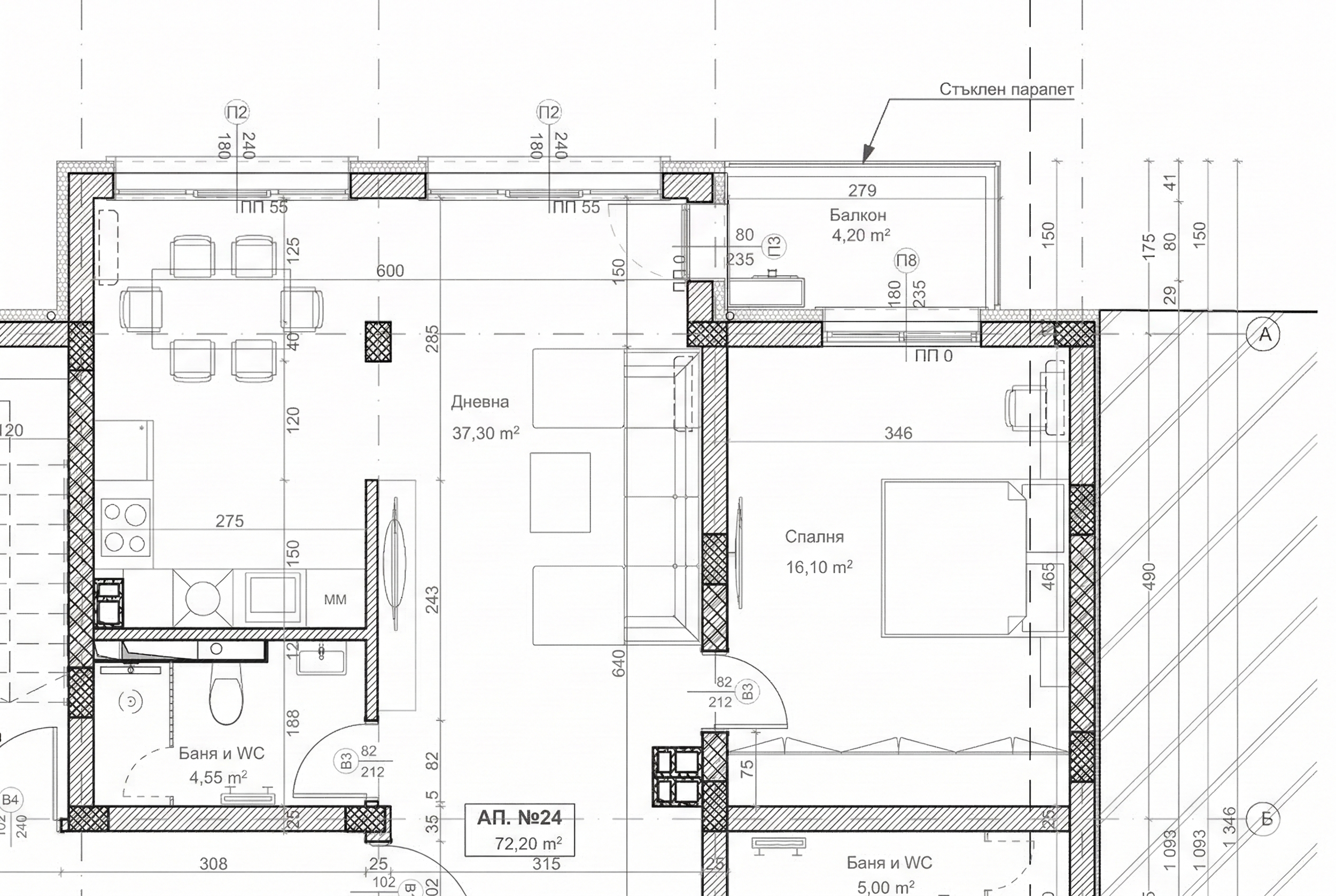
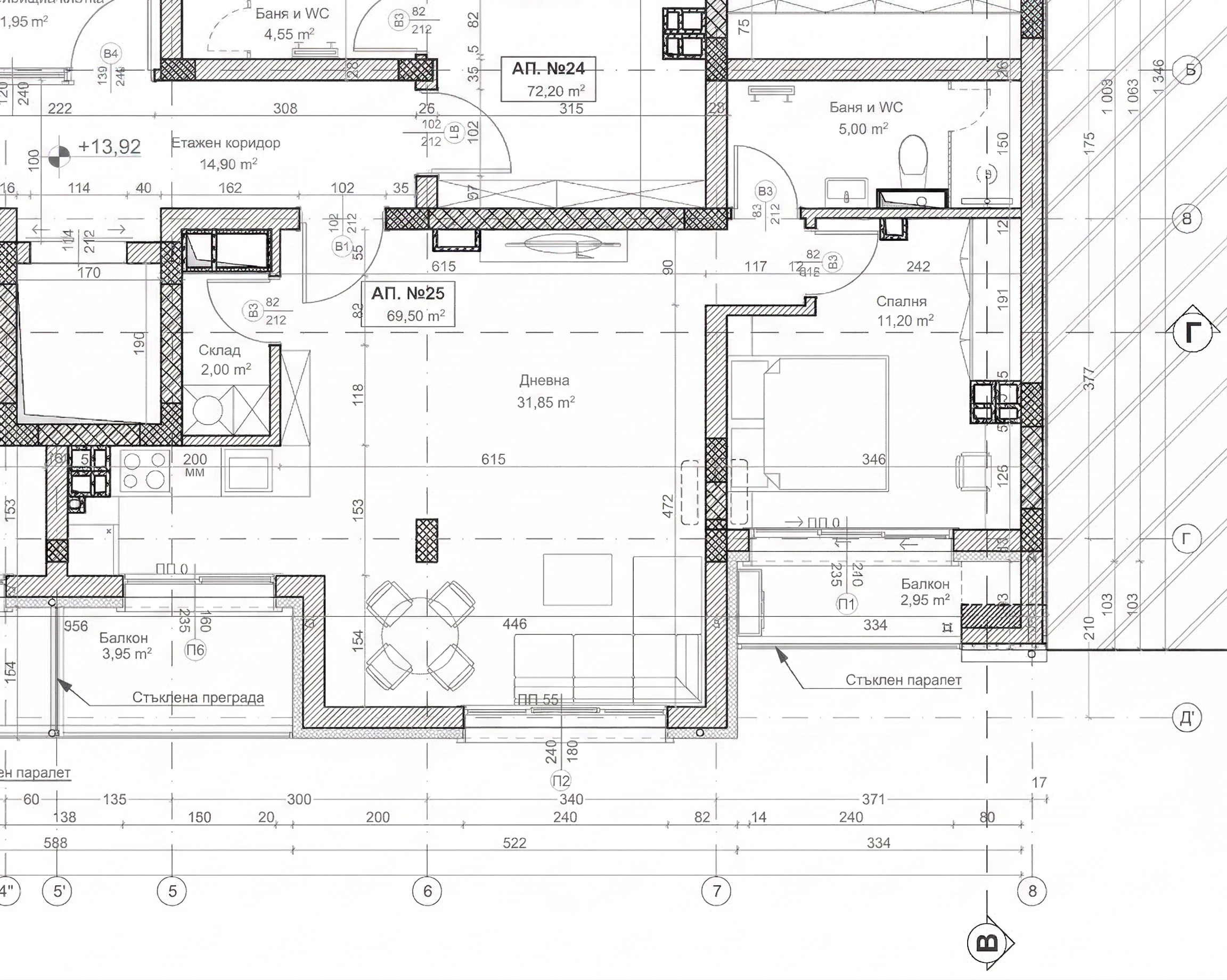
АПАРТАМЕНТ

24

БРОИ СТАИ - двустаен


КВАДРАТУРА - 80 кв.м


ЕTAЖ - 5


Жилището се състои от просторна всекидневна с кухненски бокс, отделно спалня, баня с тоалетна и балкон.

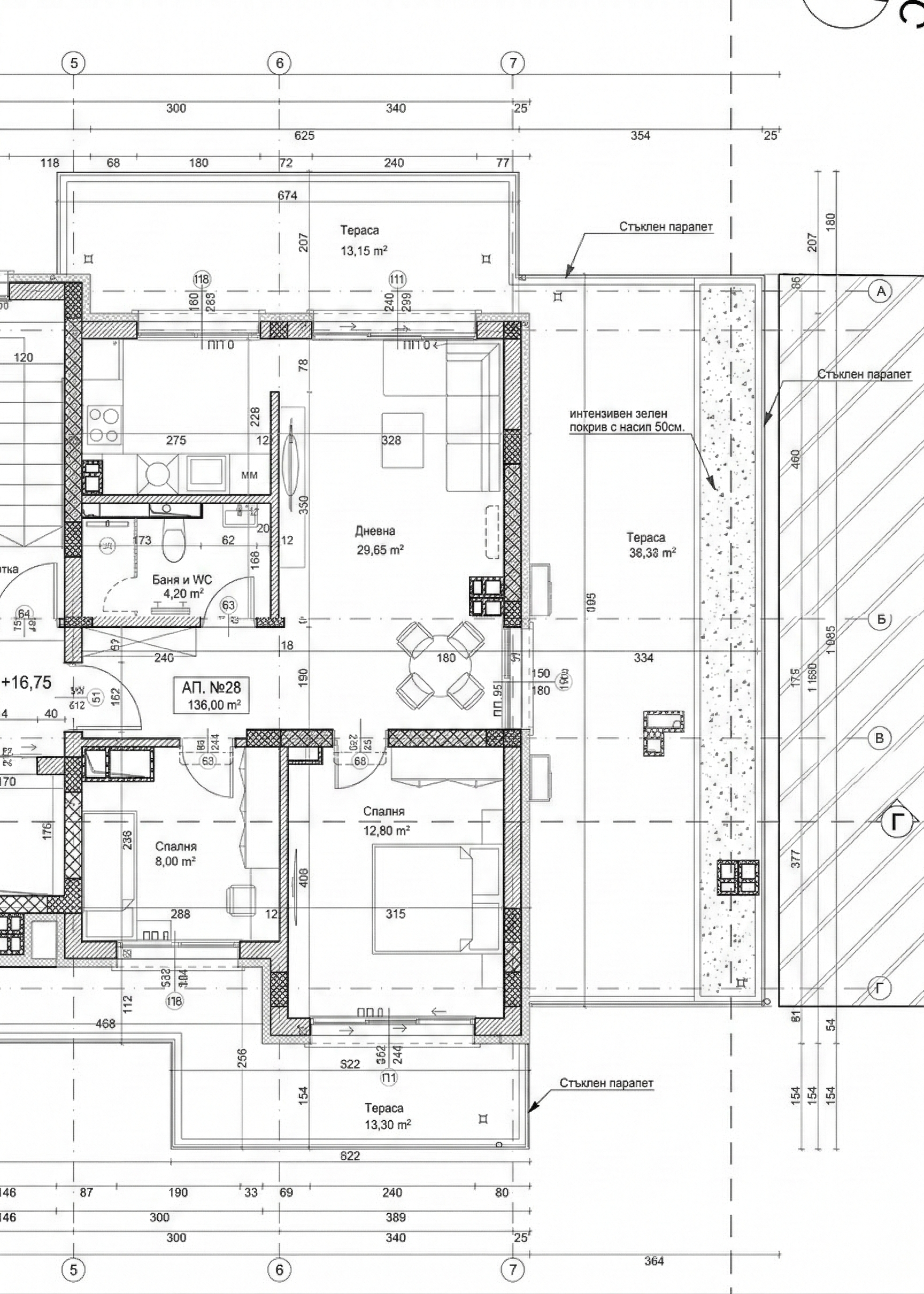
АПАРТАМЕНТ

28

БРОИ СТАИ - триистаен


КВАДРАТУРА - 155 кв.м


ЕTAЖ - 6


Жилището се състои от просторна всекидневна с кухненски бокс, отделно две спални, баня с тоалетна, входно антре и три тераси.

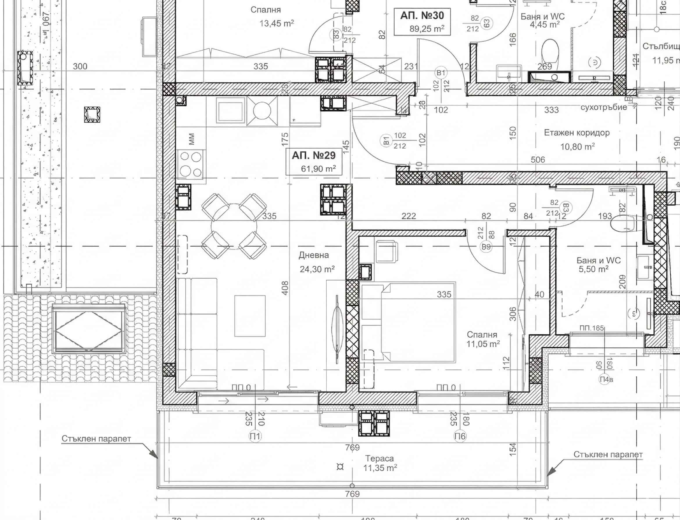
АПАРТАМЕНТ

29

БРОИ СТАИ - двустаен


КВАДРАТУРА - 70 кв.м


ЕTAЖ - 6


Жилището се състои от просторна всекидневна с кухненски бокс, коридор, отделно спалня, баня с тоалетна и голяма тераса.

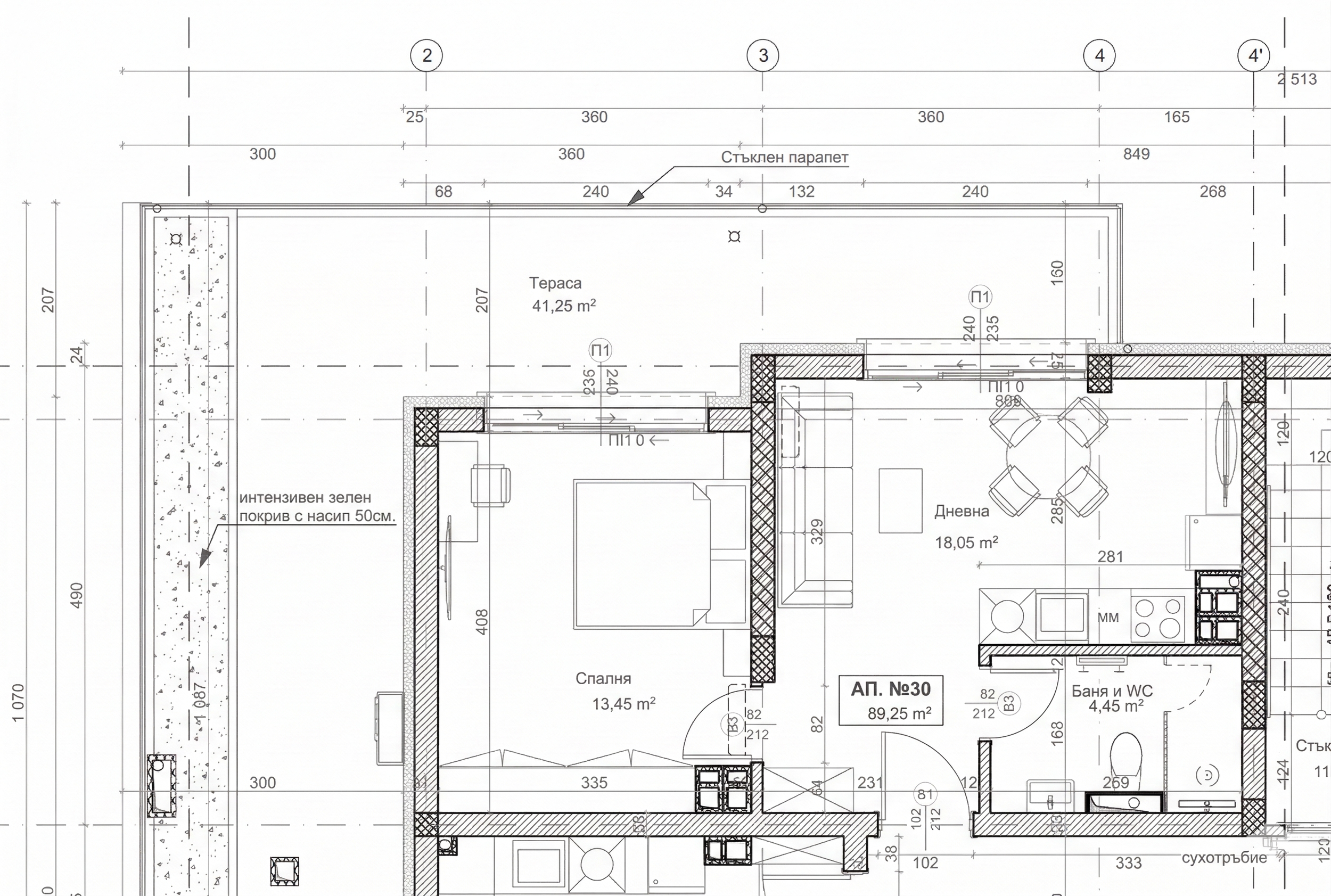
АПАРТАМЕНТ

30

БРОИ СТАИ - триистаен


КВАДРАТУРА - 96 кв.м


ЕTAЖ - 6


Жилището се състои от всекидневна с кухненски бокс, отделно спалня, баня с тоалетна и много голяма тераса.